ASHIYA OPTICAL STORE芦屋眼鏡鋪

Type of Project :
interior / 内装設計

Category :
Retail store / 物販店

Location :
Japan / 日本

Area :
57.78㎡ / 57.78平米

Location:
Hyogo, Japan  / 兵庫

Use:
Glasses / 眼鏡

Period :
Oct. 2025 ~ Dec. 2025 / 2025年10月〜2025年12月

Date:
Dec. 2025 / 2025年 12月

Client:
lool / lool

Design:
RID®︎ / アールアイディー

Project Team :
Reiichi Ikeda, Morishima / 池田励一、森島

Furniture:
INTERACTIVE, maruni / インタラクティブ、マルニ木工

Art:
Rachel Adams (yoshimi Arts) / レイチェル・アダムス(ヨシミアーツ)

Photographer:
Yoshiro Masuda / 増田 好郎

芦屋を拠点とするアイウェアストア「芦屋眼鏡舗」のインテリアデザイン。

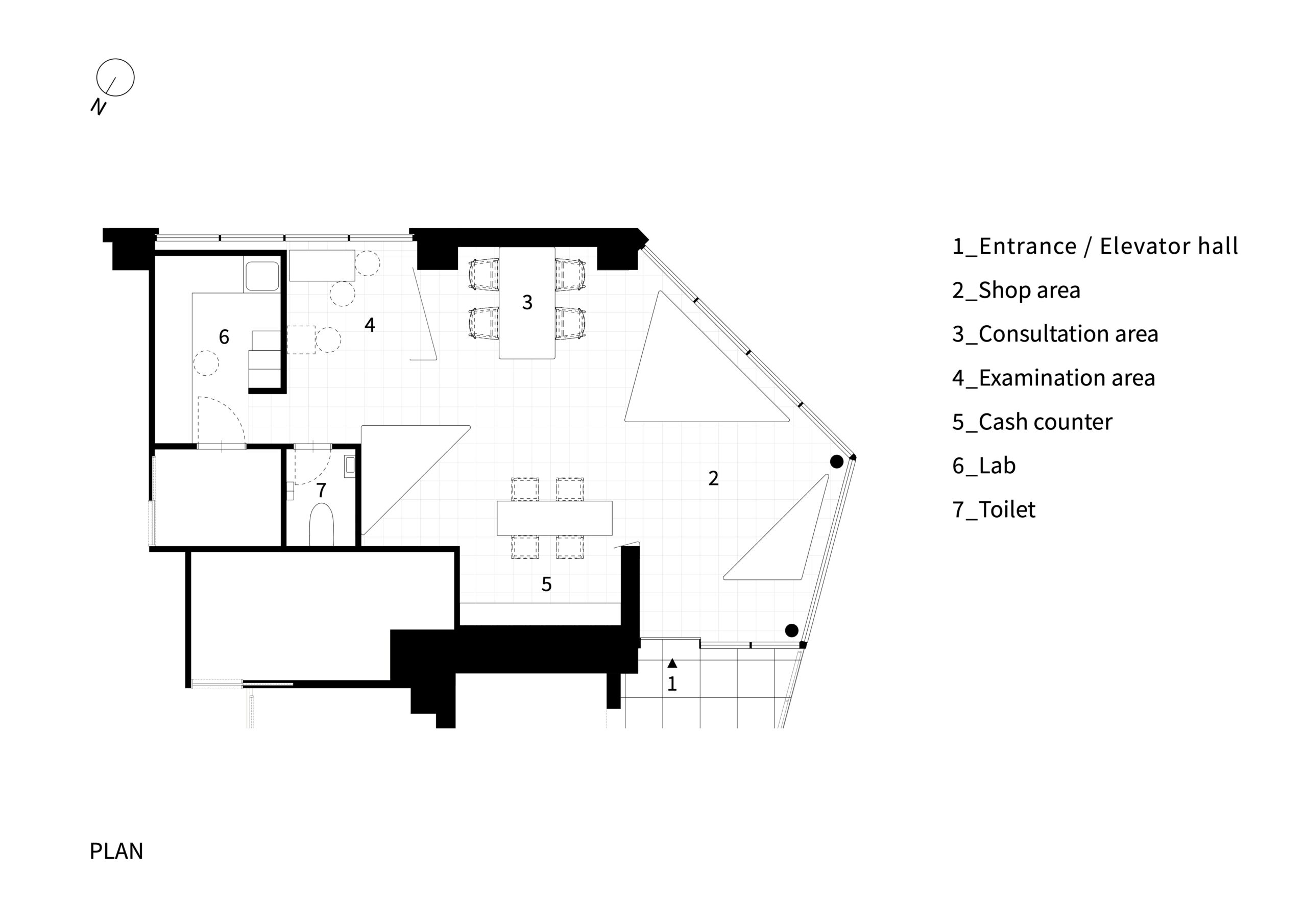
オーナーは建築やデザインに深く興味を持ち、単に商品を販売するような従来のプランニングではなく、接客する風景や展示するアイウェアを空間の一部として捉えられるような”場”を求めていた。

ロケーションは、芦屋の閑静な街の一角。
新築で進められていたビルは、周りの道路や路線に沿って計画されたことから、多様な角度で構成された外観となり、そのアウトラインがそのまま各テナントに影響しているような区画であった。

我々はまず、従来のように建築とインテリアのデザインを隔てることなく、歩幅を合わせた空間作りができないかと考察した。
そこで、多様な角度を用いられた外壁(構造)に沿うように、オフセット(ずらし)しながら複製し、内部壁やディスプレイ家具などインテリアラインを形成していった。
建築構造と同様の角度を帯びさせることで、建築の匂いが徐々にインテリアシンボルとして機能形成されていくようなことを試みている。
また、角度を帯びたインテリア群により、接客などのコミュニケーションにおいても角度を帯びる結果へと繋がっていく。

さらには、スケルトンを生かした開放感のある天井を選択せず、あえて落ち着きのある天井の低いシーンを入手するために、梁型が隠れる天井ラインまで高さをコントロールした。
しかし、露骨なスケルトン天井の迫力ある魅力を塞ぐことは、時に空間として弱点となりうるため、300角のスクウェア形状に形取ったコンクリート平板を床に用いることで、建築が持つ力を内装に転換維持している。

オリジナルのペンダントライトも建築、家具の延長線上に位置するものとし、什器同様のマテリアルを採用した。
コンパクトな照明ではあるが、ワイヤー吊りすることでソケットとコードの関係性を柔らかなものにしている。

アイウェアが空間に溶け込むことで、丁寧にメガネと対峙できるような”場”を目指した。
-
The interior design of an Eyewear Store located in Ashiya, Hyogo, Ashiya Optical Store.

The owner had a deep interest in architecture and design, and sought a place that was not based on conventional planning focused simply on selling products, but one in which scenes of customer service and the displayed eyewear could be regarded as part of the space itself.

That location was tucked away in a quiet corner of the town of Ashiya.
The facade of the new building was articulated through multiple angles, as it was planned along the road and the railway, and its outline directly influences the tenant space.

We considered how a space could be designed with a shared rhythm, without conventionally separating architecture and interior.
Following the structure of the exterior walls, articulated through multiple angles, the geometry was duplicated with subtle offsets. Through this process, a series of interior lines were generated, forming internal walls and display furniture.

By introducing angles similar to those of the architectural structure, we attempt to allow the presence of architecture to gradually emerge and function as an interior symbol.
Customer interactions are also articulated through a series of angular interior elements.

Furthermore, rather than exposing the skeletal ceiling to emphasize openness, the ceiling height was deliberately controlled to conceal the beams, creating a calmer spatial atmosphere.
However, enclosing the raw presence of the skeletal ceiling risks weakening the space by diminishing its dynamic character.
To reinterpret and retain the architectural force, 300 × 300 mm square concrete paving slabs were introduced to the floor.

The original pendant lights were positioned along the same line as the architecture and furniture, adopting the same materials used for the display fixtures.
Although the light itself is compact, suspending it by wire softens the relationship between the socket and the cord.

By allowing the eyewear to blend seamlessly into the space, the store aims to create a place where each pair of glasses can be approached with care and attention.